Szobák száma

Rendezvénytermek száma

Rendezvénytermek kapacitása

Szálláshely besorolása

Egyéb feltételek

Szálláshely max. kapacitása

Győr

Hotel Kálvária Győr

  • Szobák száma 31 db
  • Termek száma 1 db
  • Maximum kapacitás 0 fő
  • Szálláshely kapacitása 56 fő

Ajánlatkérés

Hotel Kálvária Győr
Hotel Kálvária Győr
Hotel Kálvária Győr
Hotel Kálvária Győr
Hotel Kálvária Győr
Hotel Kálvária Győr
Hotel Kálvária Győr
Hotel Kálvária Győr
Hotel Kálvária Győr
Hotel Kálvária Győr
Hotel Kálvária Győr
Hotel Kálvária Győr
Hotel Kálvária Győr
Hotel Kálvária Győr
Hotel Kálvária Győr
Hotel Kálvária Győr
Hotel Kálvária Győr
Hotel Kálvária Győr

A Hotel Kálvária ideális helyszín céges rendezvényekhez. Kérjen ajánlatot konferencia, workshop vagy tréning szervezésére a KonferenciaHotelek.hu-n!

Győr belvárosának közelében található a Hotel Kálvária Győr.
A szálloda (3* és 4*) is kínál szállás lehetőséget, így tökéletes helyszín konferenciák lebonyolításához.
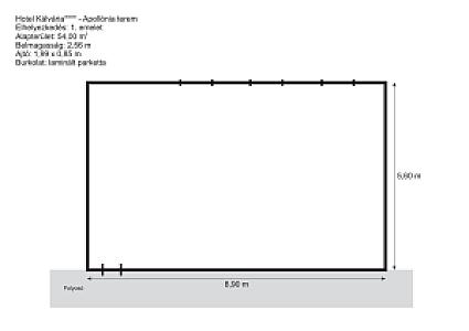
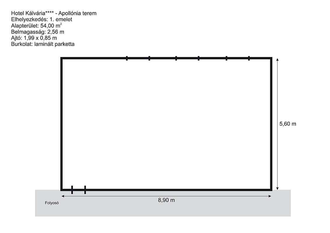
A szállodában 18 db szoba és egy 54 m2-es konferenciaterem található. Ezeken felül pedig étterem, kondicionáló terem és szauna is elérhető.
A szálloda vendégei részére a parkolás ingyenesen biztosított.
Terem képek
Terem képek
Terem képek
Terem képek
Terem képek
Terem képek
Terem neve m2
Apollónia terem 49 m2 25 fő 20 fő 20 fő

Szállás kapacitás: 56 fő
Szobák száma: 31 db

Külsős programok szervezése nem lehetséges.


Ajánlatkérés

HIRDETÉS (X)